GRANGER BAY SPA
RADDISON BLU HOTEL SPA ONE WELLNESS
LISA BOND | 2008
INTERIOR DESIGN FOR THE SPA OF THE RADDISON BLU WATERFRONT HOTEL
CAPE TOWN | SOUTH AFRICA
Radisson Blu Hotel at Granger Bay, Radisson Blu Sandton Isle, along with 8 others.
The ONE WELLNESS brief was to create a space that evoked a response from all the senses. A place that one could feel deep inside, where the soul could find solitude. Working closely with Rob Cowling & Hans Hoefnagels (National Director & CEO One Wellness group, Queensgate), Lisa created designs based on natural elements, a neutral colour palette and subtle accents of raw un-touched earth based textures.
The warm and inviting reception area sets the tone for any Spa and by invoking a nautical feel the “sail-like” ceiling was pulled together with masts made by Tensile Structures to evoke childhood daydreams & longings for escape into the wild ocean frontier. The reception space unfolds onto a deeper Journey of Wellness which includes the gym area,
change-rooms and the 10 wellness treatment rooms, and finally, lays out in the “ONE JOURNEY AREA”
Each space was carefully designed to ensure maximum comfort. The objective of “comfort” being seen in the absolute release from our modern-day, a detoxification process; represented by a letting go of all the emotional & physical toxins that challenge us day-to-day. The ‘One Journey area’ inwards insists that each station be carefully designed to cleanse and detoxify, both the physical body and the esoteric body. This is a cocooned environment where the walls curve softly while blending textured finishes of the walls & floors to amplify the soft lighting thereby invoke all the senses. Chromotherapy, aromatherapy and music all play an important role as one moves through the six stations of the “ONE JOURNEY”.
VICHY the first station, is a 20 minute long body exfoliation treatment at 27C. The purpose of removing dead and damaged skin cells and improve blood circulation thereby shedding toxins. The Rejuvenating water is rained down in torrents over the body as one reclines on a heated concrete slab with integrated heated fibre-optic lights. The Red colour escalates the body’s metabolism with vibrance and passion
RASSOUL the second station, is a 15 minute treatment with an ambient temperature of 40C. Air extraction is manually controlled to ensure comfort. All the seating surfaces are heated while fibre-optic lights twinkle through a spectrum of yellow and orange colours, as one sits bathed in hot steam. These colours offer a general warming effect, help increase: immune systems, potency, help mental stimulation and, clear a foggy head.
KNIEPPE the third station, is a 10 minute treatment with an ambient temperature 26C. One is seated with the feet and calves submerged in alternating hot and cold water baths. Stimulating circulation in the feet and legs. This helps to relieve water retention and cold numb feet. This central island is a vibrating green orb, cocooned by screens of grass infused into resin-based “ECOFORM” sheets. The green light helps to: heal tired nerves, balance emotions, refresh the spirit and, to encourage compassion.
ROCK SAUNA is station 4, has a dry heat interior between 80-90C with a treatment of 10 minutes. This method has been used for thousands of years to alleviate both physical & mental stress and has been attributed with: healing, preventative immunotherapy and, has cleansing properties. This station was designed with the natural element of a silver quartzite stone wall and has a dramatic contrast of the warm inviting red cedar interior.
MIST ROOM is station 5, is a treatment of 5 minutes in high humidity, with an ambient temperature of 20C. Cool icy mist, shrouded in a blue light rains down over the body. This is the beginning of the recovery process. The body temperature
and heart rate return back to normal. The colour effects of blue, sooth the mind and allow a clearer path for
the conscious to the spiritual self.
THE SLEEP ROOM is the final integration of the One Wellness Journey in station 6. The time here is undetermined and meant to be for ultimate release. The ambient temperature is a comfortable 28C. A resting place of indigo light, good for mental and nervous system problems, giving a deep spiritual healing, “a grounding of the soul”. This room is shrouded
in deep indigo drapes, swaddling each sleep zone in intimacy, infused with the softest of light emanating from
warm crystal lamps in a curved natural dry stone wall.

The Vitality Pool & Deck, One Wellness Spa Raddison Blu Granger Bay Hotel

Electrical Layout One Wellness Spa

Floor Finishes Plan One Wellness Spa

Early Sketch Proposal of Reception Area

Early Sketch Proposal of Vitality Pool & Deck



Reception, Salon & Spa Dining Areas One Wellness Spa Radisson Blu Granger Bay Hotel

Reception, Salon & Spa Dining Areas One Wellness Spa Radisson Blu Granger Bay Hotel

Early Sketch Designs: Reception Desk & Back Office Product Display & Storage Cabinets

Reception Desk - Floor Plan

Reception Desk - Furniture Details


Vitality Pool & Deck Relaxing Area One Wellness Spa Radisson Blu Granger Bay Hotel



Vitality Pool Details One Wellness Spa Radisson Blu Granger Bay Hotel


Sail-like Roof Structure One Wellness Spa Radisson Blu Granger Bay Hotel

Display Details Plan

Bespoke Wall Cabinet Product Display

Bespoke Wall Cabinet Product Display

Layout Plan - Treatment Room 10

Layout Plan - Treatment Room 7

Layout Plan - Treatment Room 5

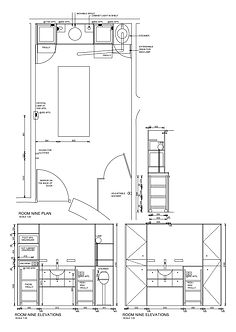
Layout Plan - Treatment Room 9

Furniture Layout Plan One Wellness Spa

Photo of one of the Ten Treatment Rooms

Photo of one of the Ten Treatment Rooms

The Sleep Room, Station 6 of the ONE journey

The Reception to the ONE journey

The Reception to the Treatment Room Area

Early Sketches of Treatment Room Cabinets

Early Sketches of the Mani-Pedi Station

Bespoke Wall Display Cabinet



Bespoke Photographs of the different Textured Natural Wall Plasters Used Through out

Bespoke Craft Mirror Treatment Room

Bespoke Craft Mirror Treatment Room

Details of the Spa Lockers

Details of the Wall Display Cabinet

Close up Photo of Spa Shower Details

Disabled Facilities

Close up Photo of Spa Shower Details

Detail of Plaster Finish of Kneippe Area, Station 3 of the ONE journey

Detail of Ecoform Sheets of Kneippe Area, Station 3 of the One journey

Detail of the Salt Crystal Lamp Alcove in the Dry Packed Stone Wall of the Sleep Room, Station 6 of the ONE journey

Detail of the Crystal Light in Treatment Room 3
